Стационарный учебно-тренировочный комплекс «Огневой полигон»
Учебно-тренировочный комплекс МЧС представляет из себя 5 высокотехнологичных модулей, предназначенных для практики работников служб с особо сложными ситуациями, такими как: тушение пожара в агрессивной среде, в задымлении, при повышенной влажности и т.п.
Системы, встроенные в тренажер безопасности (вентиляция, задымление, отопление), позволяют варьировать степени сложности проводимой тренировки. Специальные датчики слежения, встроенные в каждый модуль и контролирующие состояние тренируемых и качество выполнения заданий, а также системы аварийного отключения оборудования обеспечивают полную безопасность тренировочного процесса.
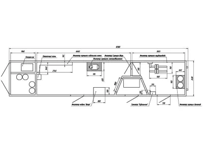
Модуль включает в себя рабочее пространство инструктора, позволяющее контролировать ход тренировки.
- управление работой тренажеров (огневых симуляторов);
- контроль за состоянием газовоздушной смеси в тренировочных помещениях;
- управление акустической связью;
- видеонаблюдение в режиме реального времени и видеозапись хода тренировки на жесткий диск;
- управление системой искусственного задымления;
- управление системой освещения;
- управление системой вентиляции и отопления;
- аварийную остановку тренировки при включении кнопки «Аварийный стоп»(при срабатывании аварийной остановки тренировки происходит прекращение подачи газа к огневым тренажерам);
- автоматическое включение аварийной остановки при превышении заданных параметров газовоздушной среды в тренировочных помещениях.
Позволяет отрабатывать навыки тушения пром-объектов и навыки спасения пострадавших.
Содержание:
- Огневой тренажер-симулятор «Горящий трубопровод»;
- Огневой тренажер-симулятор «Горящие газовые баллоны»;
- Тренажер «Рубильник».
Позволяет отрабатывать навыки тушения пром-объектов и навыки поиска и эвакуации пострадавших.
Содержание:
- Огневой тренажер-симулятор «Горящий электродвигатель»;
- Огневой тренажер-симулятор «Горящий кабельный лоток»;
- Огневой тренажер-симулятор «Потолочный огонь»;
- Огневой тренажер-симулятор «Горящая дверь»;
- Имитатор мебели «Шкаф».
Данный модуль отвечает за подачу газа в тренировочные помещения. Все системы полностью автоматизированы и безопасны: в модуле ведется автоматический контроль температур, концентрации горючего в помещении, системы вентилирования и отопления, продувка и очистка газовой системы.
Данный модуль отвечает за вентилирование тренировочных помещений. Все системы полностью автоматизированы и безопасны. Кроме того, вы можете контролировать все процессы через пульт управления.
Комплектация продукта уточняется у специалистов.
уникальный продукт сборная конструкция
Готовое коммерческое предложение
|
Комплект поставки
|
|
|
Материал
|
Корпус контейнера — стальной лист 3 мм; утепление — минеральная вата |
|
? В мм
Размер
|
12200 х 2450 х 2900 мм |
|
Вес, кг
|
10000 |
Гарантия на продукцию Феба
На каждое приобретённое оборудование в компании Феба предоставляется гарантия. При условии, если покупатель не нарушил условий эксплуатации, мы в короткие сроки устраним выявленные недостатки. Основанием для предоставления гарантии служат отгрузочные бухгалтерские документы.
Срок гарантии рассчитывается индивидуально более подробную информацию можно получить у методиста.
Гарантия начинает действовать с момента предоставления товара покупателю, если дополнительные условия не предусмотрены договором;
В гарантии предусмотрено – устранение недостатков товара в сертифицированных сервисных центрах;
Условия предоставления гарантии:
-
Юридические лица передают товар в ремонт на основании товарной накладной по форме ТОРГ-12 и счета-фактуры (либо УПД). К данным документам необходимо приложить претензию, в которой должны быть названы выявленные дефекты/недостатки товара, и сформулированы ваши требования.
-
Доставка оборудования в сервисную службу осуществляется клиентом самостоятельно.
-
Гарантийные обязательства не распространяются на материалы и детали, считающиеся расходным материалом (блоки питания, соединительные кабели, крепления и монтажные элементы).
-
Решение об удовлетворении претензии принимается после экспертизы товара (срок проведения экспертизы до 20 рабочих дней).
Гарантийные обязательства могут быть прерваны в следующих случаях:
-
Наличие явных или скрытых механических повреждений оборудования, вызванных нарушением правил транспортировки, хранения или эксплуатации;
-
Выявленное в процессе ремонта несоответствие правилам и условиям эксплуатации, предъявляемым к оборудованию данного типа;
-
Повреждение контрольных этикеток и пломб;
-
Наличие внутри корпуса оборудования посторонних предметов, независимо от их природы, если возможность подобного не оговорена в технической документации и инструкциях по эксплуатации;
-
Отказ оборудования, вызванный воздействием факторов непреодолимой силы и/или действиями третьих лиц;
-
Установка и запуск оборудования несертифицированным персоналом, в случаях, когда участие при установке и запуске квалифицированного персонала прямо оговорено в технической документации или других письменных соглашениях.
Мы всегда готовы выслушать и рассмотреть Ваши пожелания и предложения, разрешить возникшие проблемы. При появлении любых вопросов, связанных с гарантией, пожалуйста, свяжитесь с нами по телефону 8 800 444 12 55 с 10:00 до 18:00 по московскому времени или по почте: info@feba.ru
Юридическим лицам
| Оплата осуществляется по безналичному расчету. |
|
Государственным организациям
Мы рады предложить частичную или полную отсрочку оплаты государственным организациям. Все, что Вам нужно сделать, это после заказа и согласования оборудования отправить нам по электронной почте реквизиты Вашей организации. Наш менеджер оперативно подготовит всю необходимую документацию и направит ее Вам в электронном виде. Оформление поставки и оплата происходят в соответствии с условиями договора.

Все необходимые документы передаются вместе с заказом.
Физическим лицам
| Оплата осуществляется по безналичному расчету. |
|














































